
extension
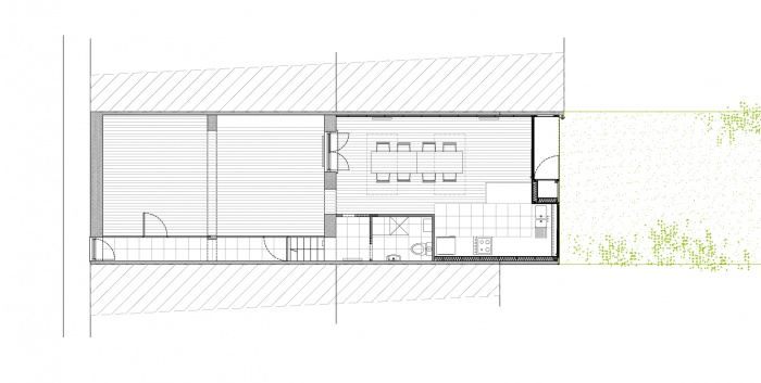
Le projet porte sur l’extension d’une maison de ville datant des années 1930. La maison existante est composée, côté rue, d’un corps principal et côté jardin d’une accumulation de petites pièces agencées de façon anarchique, non isolées et non étanches. Le programme consiste à réaménager et isoler l’ensemble de ce rez-de-chaussée.
Le projet a été de démolir cet enchevêtrement de pièces afin de créer une unité réunissant la cuisine, la salle à man¬ger, une buanderie et fluidifier la circulation. Les travaux consiste en l'agrandissement de la cuisine, la création d’une liaison directe entre le cellier et la salle à manger, l'agrandissement du salon grâce au déplacement d’une cloison, la remise aux normes du système électrique et la pose de deux grandes baies coulissantes donnant sur le jardin… L’ensemble a aussi permis, tout en gardant les mêmes hauteurs sous plafond entre l’existant et l’extension, de diminuer la consommation d’énergie par une isolation performante et étanche à l’air. Afin d'apporter un maximum de lumière naturelle dans le salon, nous avons posé deux châssis fixe de 2 x 1 m en toiture de l’extension.
Travaillant en site occupé, nous avons porté notre choix sur la construction bois, ce qui a permis de réa¬liser le chantier rapidement et proprement. Un dessin épuré de l’extension permet de ne pas surcharger le cachet propre aux maisons 1930 de la région.