Menu
Un projet réalisé par :Playtime Agence d'Architecture  Architecte à Lyon

Extension et rénovation d'une maison à Lyon

 Lyon - 69
Playtime Agence d'Architecture
Accueil Projets Extension et rénovation d'une maison à Lyon

-Commune : Lyon
-Surface: 160 m²
-Budget HT : 130 000 euros

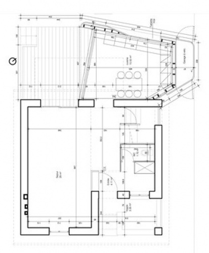
Extension et rénovation d'une maison à Lyon

Le projet consiste en l’extension d’une maison ouvrière des années d’après guerre, construite de façon traditionnelle sur un terrain en bande. La maison s’inscrit dans une continuité de plusieurs maisons du même gabarit à l’alignement de la rue. La position de l’extension satisfait à plusieurs contraintes: conserver une terrasse extérieure ensoleillée malgré l’orientation défavorable, agrandir la maison pour créer une cuisine au fonctionnement adéquat et orientée vers le jardin.

  • Extension et rénovation d'une maison à Lyon : image_projet_mini_5732
  • Extension et rénovation d'une maison à Lyon : 02_Extension et Rénovation d'une maison rue combes
  • Extension et rénovation d'une maison à Lyon : 03_Extension et Rénovation d'une maison rue combes
  • Extension et rénovation d'une maison à Lyon : 04_Extension et Rénovation d'une maison rue combes
  • Extension et rénovation d'une maison à Lyon : 05_Extension et Rénovation d'une maison rue combes
  • Extension et rénovation d'une maison à Lyon : image_projet_mini_5737
  • Extension et rénovation d'une maison à Lyon : 07_Extension et Rénovation d'une maison rue combes
  • Extension et rénovation d'une maison à Lyon : 09_Extension et Rénovation d'une maison rue combes
  • Extension et rénovation d'une maison à Lyon : 10_Extension et Rénovation d'une maison rue combes
  • Extension et rénovation d'une maison à Lyon : image_projet_mini_43515
  • Extension et rénovation d'une maison à Lyon : Fred_20100719_6650.JPG
  • Extension et rénovation d'une maison à Lyon : Fred_20100719_6653.JPG

Trouvez un architecte pour votre projet

Protection de vos données personnelles

Depuis toujours, architectes-france.com ne transfère aucune donnée personnelle à d'autres acteurs que ceux directement concernés par le projet (architectes, architectes d'intérieur...) et qui appartiennent à son réseau. Nos listes ne sont jamais transmises ou vendues à des partenaires extérieurs, même si ceux-ci appartiennent au domaine de la construction.
Toute modification dans ce domaine ne serait effectuée qu'avec votre consentement.

Je consens à ce que mes données personnelles soient collectées pour permettre à architectes-france de transférer votre projet aux architectes. Seul Architectes-france, ses équipes internes et la maitrise d'oeuvre concernée par le projet y ont accès. Aucune transmission de données à des tiers à l'exclusion de ceux décrits ci dessus n'est réalisée.

Mes données téléphoniques seront uniquement utilisées par Architectes-france.com et les architectes de notre réseau dans le cadre de la qualification et du suivi de mon projet.

Les données sont conservées pendant une durée de 18 mois courant à partir des derniers contacts effectifs entre architectes-france et vous ou architectes-france et un membre de la maitrise d'oeuvre en rapport avec ce projet et qui serait en relation avec architectes-france.

Conformément à la loi « informatique et libertés », vous pouvez exercer votre droit d'accès aux données vous concernant et les faire rectifier en contactant : Architectes-france, 23 avenue du Mirail - parc du Mirail - 33370 Artigues-près Bordeaux. Tél. 05.47.74.51.01 - contact@architectes-france.com

Trouvez un architecte pour votre projet

Protection de vos données personnelles

Depuis toujours, architectes-france.com ne transfère aucune donnée personnelle à d'autres acteurs que ceux directement concernés par le projet (architectes, architectes d'intérieur...) et qui appartiennent à son réseau. Nos listes ne sont jamais transmises ou vendues à des partenaires extérieurs, même si ceux-ci appartiennent au domaine de la construction.
Toute modification dans ce domaine ne serait effectuée qu'avec votre consentement.

Je consens à ce que mes données personnelles soient collectées pour permettre à architectes-france de transférer votre projet aux architectes. Seul Architectes-france, ses équipes internes et la maitrise d'oeuvre concernée par le projet y ont accès. Aucune transmission de données à des tiers à l'exclusion de ceux décrits ci dessus n'est réalisée.

Mes données téléphoniques seront uniquement utilisées par Architectes-france.com et les architectes de notre réseau dans le cadre de la qualification et du suivi de mon projet.

Les données sont conservées pendant une durée de 18 mois courant à partir des derniers contacts effectifs entre architectes-france et vous ou architectes-france et un membre de la maitrise d'oeuvre en rapport avec ce projet et qui serait en relation avec architectes-france.

Conformément à la loi « informatique et libertés », vous pouvez exercer votre droit d'accès aux données vous concernant et les faire rectifier en contactant : Architectes-france, 23 avenue du Mirail - parc du Mirail - 33370 Artigues-près Bordeaux. Tél. 05.47.74.51.01 - contact@architectes-france.com