Menu
Un projet réalisé par :Playtime Agence d'Architecture  Architecte à Crozon

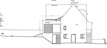
Rénovation et Extension d'une maison dans le Finistère

 Crozon - 29
Playtime Agence d'Architecture
Accueil Projets Rénovation et Extension d'une maison dans le Finistère

-Commune : Crozon
-Surface: 180 m²
-Budget HT : 270 000 euros

Rénovation et Extension d'une maison dans le Finistère

Ce projet de maison de vacances retourne la maison actuelle tournée vers la rue au profit du jardin inexploité et bien orienté. Projet en cours d'études. Lutte difficile avec une mairie récalcitrante malgré une conformité en tous points aux règlements, le projet devrait passer en force (Architecte des Bâtiments de France favorable)

  • Rénovation et Extension d'une maison dans le Finistère : image_projet_mini_5827
  • Rénovation et Extension d'une maison dans le Finistère : 02_Rénovation et Extension Maison Finistère
  • Rénovation et Extension d'une maison dans le Finistère : 03_Rénovation et Extension Maison Finistère
  • Rénovation et Extension d'une maison dans le Finistère : 04_Rénovation et Extension Maison Finistère
  • Rénovation et Extension d'une maison dans le Finistère : 05_Rénovation et Extension Maison Finistère
  • Rénovation et Extension d'une maison dans le Finistère : 06_Rénovation et Extension Maison Finistère
  • Rénovation et Extension d'une maison dans le Finistère : 08_Rénovation et Extension Maison Finistère

Trouvez un architecte pour votre projet

Protection de vos données personnelles

Depuis toujours, architectes-france.com ne transfère aucune donnée personnelle à d'autres acteurs que ceux directement concernés par le projet (architectes, architectes d'intérieur...) et qui appartiennent à son réseau. Nos listes ne sont jamais transmises ou vendues à des partenaires extérieurs, même si ceux-ci appartiennent au domaine de la construction.
Toute modification dans ce domaine ne serait effectuée qu'avec votre consentement.

Je consens à ce que mes données personnelles soient collectées pour permettre à architectes-france de transférer votre projet aux architectes. Seul Architectes-france, ses équipes internes et la maitrise d'oeuvre concernée par le projet y ont accès. Aucune transmission de données à des tiers à l'exclusion de ceux décrits ci dessus n'est réalisée.

Mes données téléphoniques seront uniquement utilisées par Architectes-france.com et les architectes de notre réseau dans le cadre de la qualification et du suivi de mon projet.

Les données sont conservées pendant une durée de 18 mois courant à partir des derniers contacts effectifs entre architectes-france et vous ou architectes-france et un membre de la maitrise d'oeuvre en rapport avec ce projet et qui serait en relation avec architectes-france.

Conformément à la loi « informatique et libertés », vous pouvez exercer votre droit d'accès aux données vous concernant et les faire rectifier en contactant : Architectes-france, 23 avenue du Mirail - parc du Mirail - 33370 Artigues-près Bordeaux. Tél. 05.47.74.51.01 - contact@architectes-france.com

Trouvez un architecte pour votre projet

Protection de vos données personnelles

Depuis toujours, architectes-france.com ne transfère aucune donnée personnelle à d'autres acteurs que ceux directement concernés par le projet (architectes, architectes d'intérieur...) et qui appartiennent à son réseau. Nos listes ne sont jamais transmises ou vendues à des partenaires extérieurs, même si ceux-ci appartiennent au domaine de la construction.
Toute modification dans ce domaine ne serait effectuée qu'avec votre consentement.

Je consens à ce que mes données personnelles soient collectées pour permettre à architectes-france de transférer votre projet aux architectes. Seul Architectes-france, ses équipes internes et la maitrise d'oeuvre concernée par le projet y ont accès. Aucune transmission de données à des tiers à l'exclusion de ceux décrits ci dessus n'est réalisée.

Mes données téléphoniques seront uniquement utilisées par Architectes-france.com et les architectes de notre réseau dans le cadre de la qualification et du suivi de mon projet.

Les données sont conservées pendant une durée de 18 mois courant à partir des derniers contacts effectifs entre architectes-france et vous ou architectes-france et un membre de la maitrise d'oeuvre en rapport avec ce projet et qui serait en relation avec architectes-france.

Conformément à la loi « informatique et libertés », vous pouvez exercer votre droit d'accès aux données vous concernant et les faire rectifier en contactant : Architectes-france, 23 avenue du Mirail - parc du Mirail - 33370 Artigues-près Bordeaux. Tél. 05.47.74.51.01 - contact@architectes-france.com